
N E U ! ! !
Neustadt - Hambach
Historisches Anwesen aus dem Jahr 1839 !
Denkmalgeschütztes Ensemble zu Füßen des Schlosses !
Weitere Immobilien
Hier finden Sie weitere Immobilien, die Ihr Interesse erwecken könnten.

Historisches Anwesen aus dem Jahr 1839 !
Außergewöhnlich, stilvolles denkmalgeschütztes Ensemble zu Füßen des Schlosses !
13 Zimmer | 1 Küche | 2 Bäder | 1 verglaster Balkon | 1 Balkon | 5 KFZ-Stellplätze
Grundstücksgröße 1390 m²
Kaufpreis: Auf Anfrage | Courtage 3,57 % inkl. MwSt.
Objektbeschreibung:
Historisches Anwesen! Herrenhaus mit geschlossenem Areal.
Laut Denkmalschutzbehörde in seiner historischen Art einzigartig !
Was erwartet Sie ?
Im Hauptgebäude befinden sich im Erdgeschoss schöne Terrazzoböden in Küche, Bad und Flur sowie hochwertiges Parkett mit Einfassungen in den anderen Räumen. Die Deckenhöhen von 3 Metern, Stuck, Vergoldungen und Linkrusta-Tapeten sowie andere laut Denkmalschutz im Original erhaltene Innenausstattung und historischen Details verleihen den Räumlichkeiten ihre Einzigartigkeit und besondere Extravaganz.
Das Esszimmer ist mit aufwendiger Deckenmalerei, Wandvertäfelungen und mit einer wirklich einzigartig verzierten Deckenhängeleuchte versehen. Ein besonderes Schmuckstück ist das sog. Maurische Zimmer, dessen Aura sich ansatzweise durch die angehängten Bilder erfassen lässt. Weiterhin sind zusätzlich zwei Original Kachelkaminöfen vorhanden.
Im Obergeschoss wurde hauptsächlich Parkett verlegt.
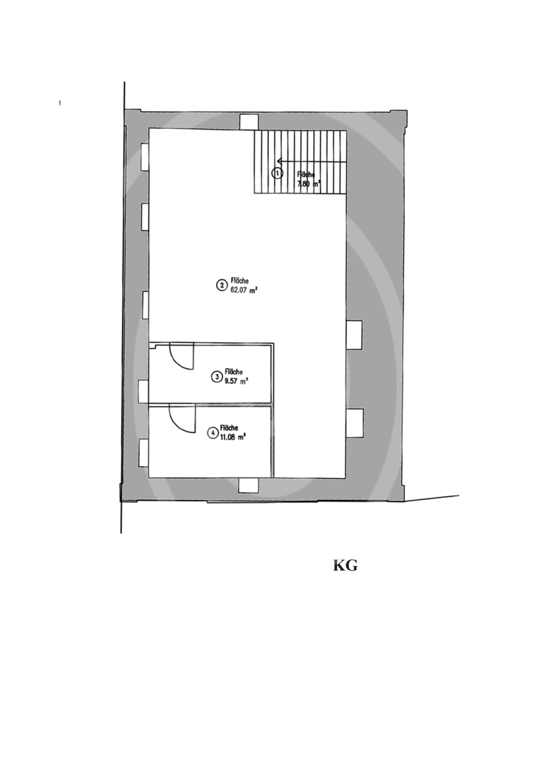
Das Haupthaus besteht aus einem großen Gewölbekeller, einem Erdgeschoss, einem Obergeschoss und einem Dachgeschoss. Weiterhin ist ein zweistöckiges Nebenhaus vorhanden. Direkt anschließend befindet sich ein Seitentrakt, bestehend aus Erdgeschoss, Obergeschoss und Dachgeschoss. Zu guter Letzt wartet ein großes Atelier ca. 100 m² sowie ein sehr großer Dachraum mit ca. 80 m² auf. Ideal auch um z.B. Oldtimer oder ähnliches zu platzieren.
Unter dem Atelier befindet sich zudem nochmals ein ca. 40 m² großer Sandstein Gewölbekeller.
Der großzügige, gepflasterte Hof und der anschließende große Park verleihen dem Gesamtensemble das gewisse ETWAS !
Lage:
Hervorragende und ruhige Wohnlage mit ausgezeichneter Infrastruktur, die keine Wünsche offen lässt.
Das gut bürgerliche Umfeld trägt mit zu dem Wohlfühlambiente bei.
In wenigen Gehminuten ist man an der Bushaltestelle. Kindergärten befinden sich in unmittelbarer Nähe.
Zur Infrastruktur:
Hambach verfügt über eine Grundschule sowie eine Realschule +.
Die weiterführenden Schulen sind in der Stadt, bzw. am Stadtrand.
In Hambach ist alles an Geschäften für den täglichen Gebrauch vorhanden.
Bäckerei, Metzgerei sowie zwei Einkaufsmärkte mit unterschiedlicher Sortierung.
Fußläufig ist man in wenigen Gehminuten im Hambacher Waldgebiet, das zu ausgiebigen Spaziergängen oder Joggingstrecken - Touren einlädt.
Ausstattung:
Das Haupthaus verfügt über drei Wohnebenen. Das vorgelagerte Treppenhaus würde auch die Möglichkeit bieten, jeweils eine abgeschlossene Wohnung zu realisieren. Die Wohnflächen reichen von ca.117 m² im Erdgeschoss, ca.100 m² im Obergeschoss bis hin zu ca. 85 m² im Dachgeschoss. Die durchschnittliche Deckenhöhe beträgt im Erdgeschoss und Obergeschoss ca. 3 m und im Dachgeschoss 2,35m. Das Dachgeschoss ist weitgehend vom Denkmalschutz befreit ( Details auf Anfrage ). Unter dem Gebäude befindet sich ein großer Gewölbekeller aus Sandstein.
Das Nebenhaus wartet mit zwei Vollgeschoßen und einer großen Terrasse auf. Wohnfläche gesamt ca. 70 m². Eine Verbindungstreppe innen ist laut Denkmalschutz realisierbar.
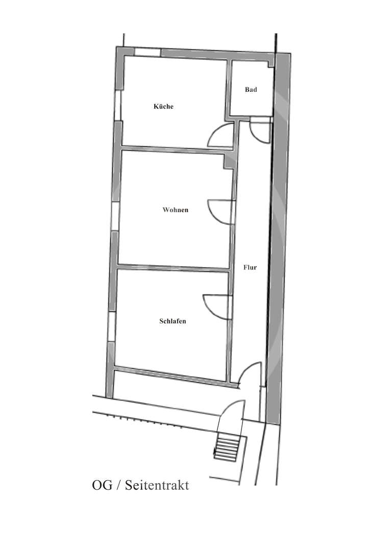
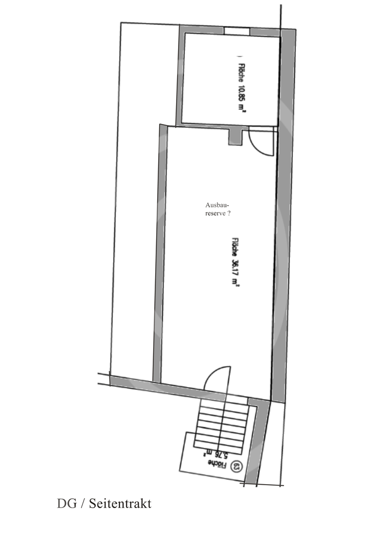
Der Seitentrakt besteht aus Erdgeschoss, Obergeschoss, Dachgeschoss. Eine Verbindungstreppe von Obergeschoss zu Dachgeschoss ist realisierbar. Hier können ca. 103 m² Wohnfläche realisiert werden. Gegebenenfalls noch im Erdgeschoss ca. 50 m².
Das Atelier ( ehemaliges Kelterhaus ) hat einen ca. 40 m² großen Gewölbekeller.
Das Erdgeschoss hat eine Fläche von ca. 100 m² und das hohe Dachgeschoss bietet zusätzlich ca. 80 m² nach DIN.
Sonstiges:
Die Immobilie ist derzeit bewohnt und kann nach Terminvereinbarung mit uns besichtigt werden.
Maximale Wohnfläche bis zu 700 m²
Die derzeitige Wohnfläche beim Haupthaus mit Erdgeschoss, Obergeschoss und Dachgeschoss liegt bei 290 m².
Bei einer maximalen Ausnutzung haben wir im:
Nebenhaus 70 m³ Ausbaureserve.
Seitentrakt 103 m³ ( Bei Ausbau im Erdgeschoss zusätzlich nochmals ca. 50 m² ).
Atelier mit 186 m².
=============================================================
Im Gesamten wären ca. 664 m² ( mit EG Seitentrakt ca. 700 m² ) realisierbar.
Modernisierung:
Unter anderem wurden folgende Modernisierungen durchgeführt:
- Holzfenster ( doppelverglast )
- Heizung Brennwerttechnik
- Elektroinstallation ergänzt.




Gleisweiler
Denkmalgeschütztes, in sich geschlossenes ehemaliges Winzeranwesen, mit traumhafter Aussicht in die Rheinebene
10 Zimmer | 2 Küchen | 2 Bäder | 1 Terrasse | 1 Balkon | 1 Scheune | 2 KFZ-Stellplätze
Grundstücksgröße 689 m² | Wohnfläche ca. 213 m²
Kaufpreis: € 395.000,- | Courtage 3,57 % inkl. MwSt.
Objektbeschreibung:
Ehemaliges Winzeranwesen mit in sich geschlossener Hofbauweise mit Haupthaus, großer Scheune, ehemalige Stallung und mit einem großen Hoftor. Seitlich an der Scheune befindet sich eine Garage. Das Haupthaus hat einen großen Weinkeller, der Zugang befindet sich unter der Eingangstreppe zum Haupthaus. Der Gewölbekeller hat eine Höhe von 4,42 m. Bei einer Länge von 8,44 m und einer Breite von 6 m stellt dieses schon eine imposante Größe dar. Dieser Raum würde sich nach wie vor sehr gut als Weinlagerraum eigenen oder aber auch als zünftiger Raum um Feste zu feiern. Der ebenerdige “Keller“ neben dem Weinkeller, ist mit einem urigen Brotbackofen ausgestattet. Im daneben liegenden Raum ( unter der Terrasse ) befindet sich die ehemalige Räucherkammer und ein beheizbarer Wäschekessel. Vom Haupthaus, von der Küche aus, führt eine Treppe hinunter in den Keller. Durch eine große Tür gelangt man am Ende des “Kellers“ in den geschlossenen Innenhof.
In das Haupthaus gelangt man über die Eingangstreppe. Auf der Ebene hier im Obergeschoss, befinden sich ein Flur, ein Wohnzimmer, Esszimmer, ein Schlafzimmer, zwei Küchen, und ein Bad sowie eine 33 m² große Terrasse mit Blick in die Rheinebene.
Im Zweiten Obergeschoss, befinden sich zwei Kinderzimmer, ein Hauswirtschaftsraum, ein Arbeitszimmer mit Balkon, ein Wohnzimmer sowie ein Bad. Im Flur 2 befindet sich die Einschubtreppe für das Dachgeschoss. Auch von hier aus hat man einen tollen Blick in die Rheinebene.
Im Dachgeschoss ist eine Grundfläche von ca. 115 m² vorhanden. Die Höhe variiert von 3,5m bis 4,9 m. Sollte diese zu Wohnraum ausgebaut werden können, hätte man einen gigantischen Ausblick, sowohl auf den Pfälzerwald, als auch in die Rheinebene.
Die Scheune ist sehr groß dimensioniert. Hier haben wir im Erdgeschossbereich eine Grundfläche von 13 m x 9 m = 117 m². Die Höhe der Scheune beträgt ca. 9,20 m.
Die seitlich gelegene Stallung hat nochmals ca. 30 m² Grundfläche und eine Firsthöhe von ca. 7 m.
Seitlich an der Stirnseite der Scheune ( Nord ) befindet sich noch eine Garage.
Lage:
Diese Lage ist erstklassig. Dies hängt davon ab, das man hier am Ortsrand ist, der Verkehr eher einer Anliegerstraße gleicht und zu guter Letzt, die tolle Aussicht in die Rheinebene. Was weiterhin einen ungemeinen Charme hat, ist diese geschlossene Bauweise. Dies vermittelt ein wenig den Charakter eines kleinem Schlößchen / Burg.
Das gesamte Anwesen bedarf einer umfassenden Sanierung. Da es sich hierbei um ein denkmalgeschütztes Gebäude handelt, sind hier ggf. hohe Abschreibungen möglich.
Welche Förderung und wie hoch diese sind, ist mit der Denkmalschutzbehörde in der Kreisverwaltung in Landau abzuklären.Sonstiges:
Die Immobilie ist derzeit nicht bewohnt und kann nur nach vorheriger Terminvereinbarung mit uns besichtigt werden.
Ludwigshafen- Gartenstadt
Herrschaftliche Stadtvilla
VERKAUFT
Lambrecht
Top gepflegtes Mehrfamilienhaus ! In Bestlage !
12 Zimmer | 4 Küchen | 4 Bäder | 1 Terrasse | 3 Balkone | 5 KFZ-Stellplätze
Grundstücksgröße 801 m²
Kaufpreis: € 649.000,- | Courtage 3,57 % inkl. MwSt.
Objektbeschreibung:
Gepflegtes Vierfamilienhaus, im Erdgeschoss befindet sich eine neuwertige 3 ZKB Wohnung. Im 1. Obergeschoß findet man eine 3 ZKB Wohnung mit großer Terrasse vor.
Im 2. Obergeschoß eine große 4 ZKB Wohnung mit großer Terrasse, Balkon und Gartenanteil und im Dachgeschoß eine großzügige 2 ZKB Wohnung mit 2 Balkonen. Alle Wohnungen sind sehr gut vermietet. Weiterhin sind vor dem Haus 5 KFZ-Stellplätze.
Lage:
Die Lage kann man ruhigen Gewissens als Bestlage bezeichnen.
Bei den wenigen Fahrzeugen die hier vorbeifahren, handelt es sich um reinen Anliegerverkehr.
Den Wald haben Sie sozusagen direkt hinter dem Haus. Die Infrastruktur von Lambrecht, ist als sehr gut zu bezeichnen. Viele Einkaufsmöglichkeiten, verschiedene Schulen Kindergärten Ärzte und Apotheken. Vereine für Sport und Freizeit und eine Verkehrsanbindung zur Bahn mit eigenem Bahnhof. Über die B 39 geht die Verbindung von Neustadt nach Kaiserslautern.
Ausstattung:
Die Erdgeschosswohnung wurde 2020 komplett ausgebaut.
Der Flur im allgemeinen Treppenhaus, für die Wohnungen 2-4, ist in Marmor gehalten.
Die Wohnung im 1. Obergeschoss wurde teilweise renoviert, Zustand ist als durchschnittlich zu betrachten.
In der Wohnung im 2. Obergeschoss wurde das Bad 2020 komplett erneuert, sowie ein 4. Zimmer geschaffen.
Die Dachgeschosswohnung wurde 2017 komplett ausgebaut und gedämmt.
Die Heizungsanlage wurde 2015 erneuert mit einer Brennwerttherme von Vaillant.
Weiterhin wurde die Elektrik überprüft und die Wohnungen wurden mit Fehlerstromschutzschaltern versehen.
Mieteinnahmen:
Die Erdgeschosswohnung
mit ca. 75 m² Wohnfläche, erzielt eine Kaltmiete von € 590,-
Die Wohnung im 1. Obergeschoß
mit ca. 81 m² Wohnfläche, erzielt eine Kaltmiete von € 644,43,-
Die Wohnung im 2. Obergeschoß
mit ca.107 m² Wohnfläche, erzielt eine Kaltmiete von € 795,-
Die Wohnung im Dachgeschoß
mit ca. 75 m² Wohnfläche, erzielt eine Kaltmiete von € 660,-
___________________________________________________
Gesamte Kaltmiete beträgt monatlich: € 2689,43
Besichtigungstermine:
Die Immobilie ist derzeit komplett vermietet und kann nur nach Terminvereinbarung mit uns besichtigt werden.
Kirrweiler, Venningen und Lachen-Speyerdorf
Verschiedene Weinberge,
Weinberg z.B. Venningen: 1418 m²
Kaufpreis: € 1.3.471,- | Courtage 3,57 % inkl. MwSt.
Kaufpreis: Siehe Preisliste im Anhang
Grundstücksgröße: Siehe Liste im AnhangObjektbeschreibung:
Die angebotenen Weinberge sind allesamt verpachtet. Der Pachtvertrag
muss mit übernommen werden.
Der Pachtvertrag endet am 31.12.2029.
Einer Verlängerung steht nichts Wege.
Lage:
Die genauen Lagen können Sie aus der beigefügten Liste im Anhang
ersehen.
Angeboten werden verschiedene Weinberge im Bereich:
Kirrweiler, Venningen und Lachen-Speyerdorf.Die genauen Lagen können Sie aus der beigefügten Liste im Anhang
ersehen.
Besichtigungstermine :
Für detaillierte Fragen , stehen wir Ihnen zur Verfügung.